Le projet consiste en la reconversion d’une pharmacie en maison de village.

Le nouveau propriétaire nous a mandaté pour convertir cette ancienne maison de village, qui fut utilisée un temps comme épicerie puis comme pharmacie, en une maison.

Maîtres d'ouvrage: privé
Situation géographique: Collonge-Bellerive
Collaborateurs: R. Dupuis - L. Beaud
Chauffage par pompe à chaleur géothermique et panneaux photovoltaïques

    • Avant travaux - Pendant travaux - Après travaux
    • Avant travaux - Pendant travaux - Après travaux
    • Avant travaux - Pendant travaux - Après travaux
    • Avant travaux - Pendant travaux - Après travaux
    • Avant travaux - Pendant travaux - Après travaux
    • Avant travaux - Pendant travaux - Après travaux
    • Avant travaux - Pendant travaux - Après travaux
    • Avant travaux - Pendant travaux - Après travaux
    • Avant travaux - Pendant travaux - Après travaux
    • Avant travaux - Pendant travaux - Après travaux
    • Avant travaux - Pendant travaux - Après travaux
    • Avant travaux - Pendant travaux - Après travaux
    • Avant travaux - Pendant travaux - Après travaux
    • Avant travaux - Pendant travaux - Après travaux
    • Avant travaux - Pendant travaux - Après travaux
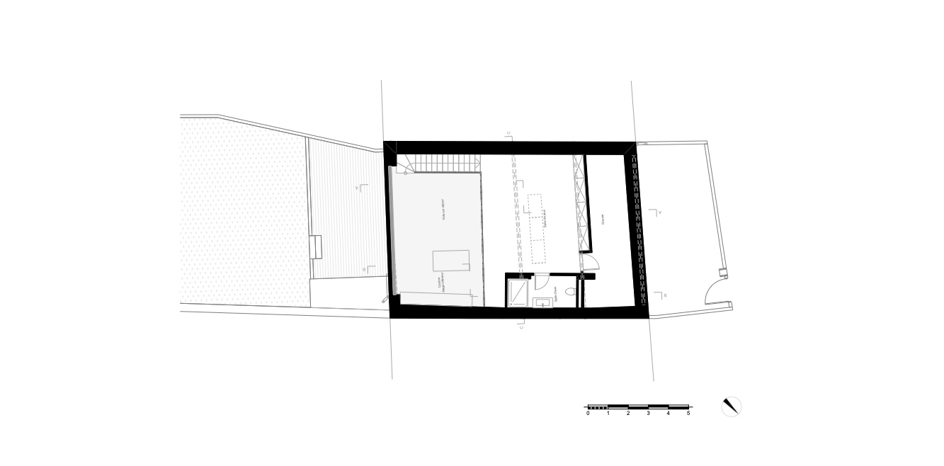
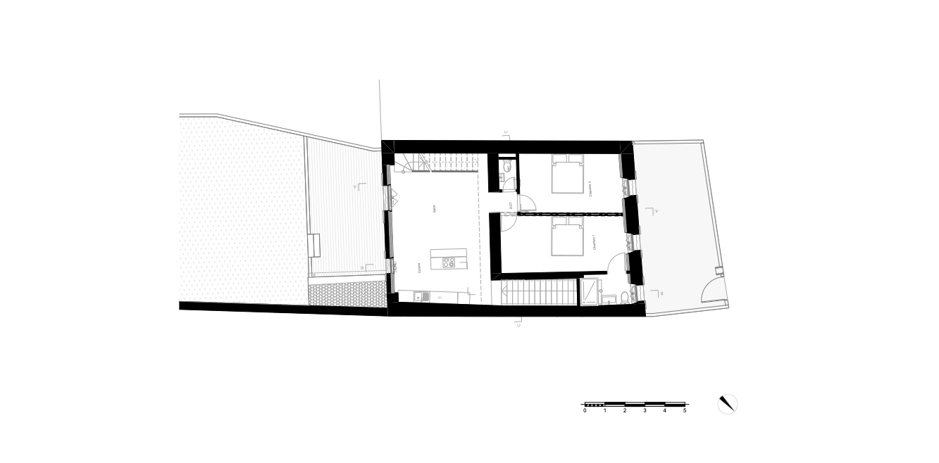
    • plans
    • plans
    • plans
    • plans
    • coupes - façades
    • coupes - façades
    • coupes - façades
    • coupes - façades
    • coupes - façades