Louis Yung 34 est un projet de rénovation d’une villa construite dans les années 30.

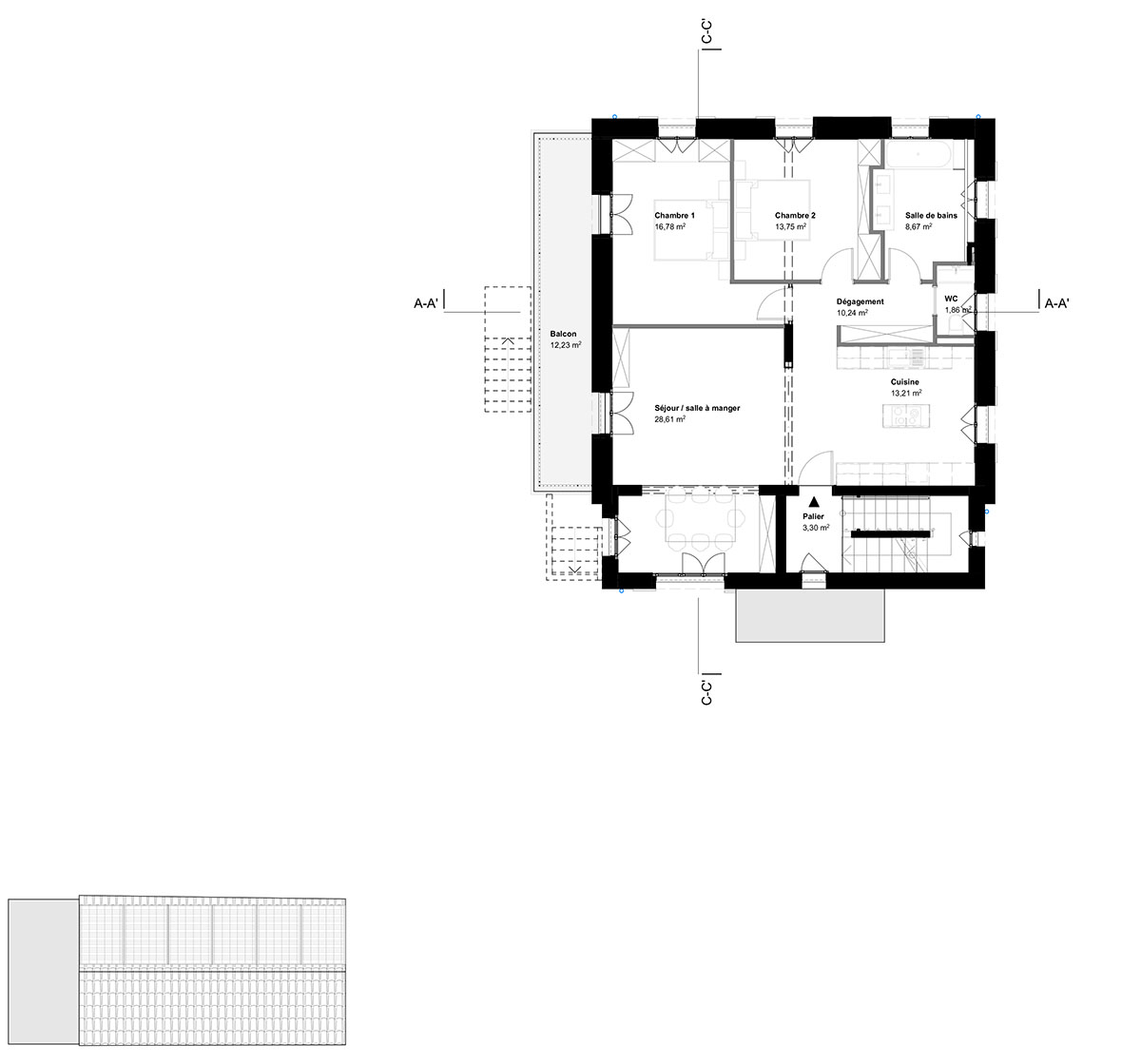
Atelier Nord a été mandaté afin de rénover,  d’agrandir et de diviser en 3 appartements cette villa située à Versoix.

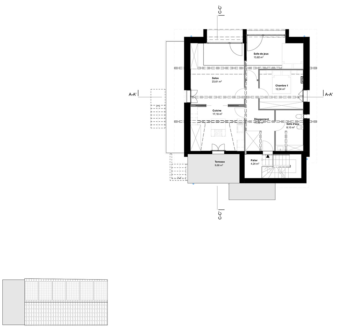
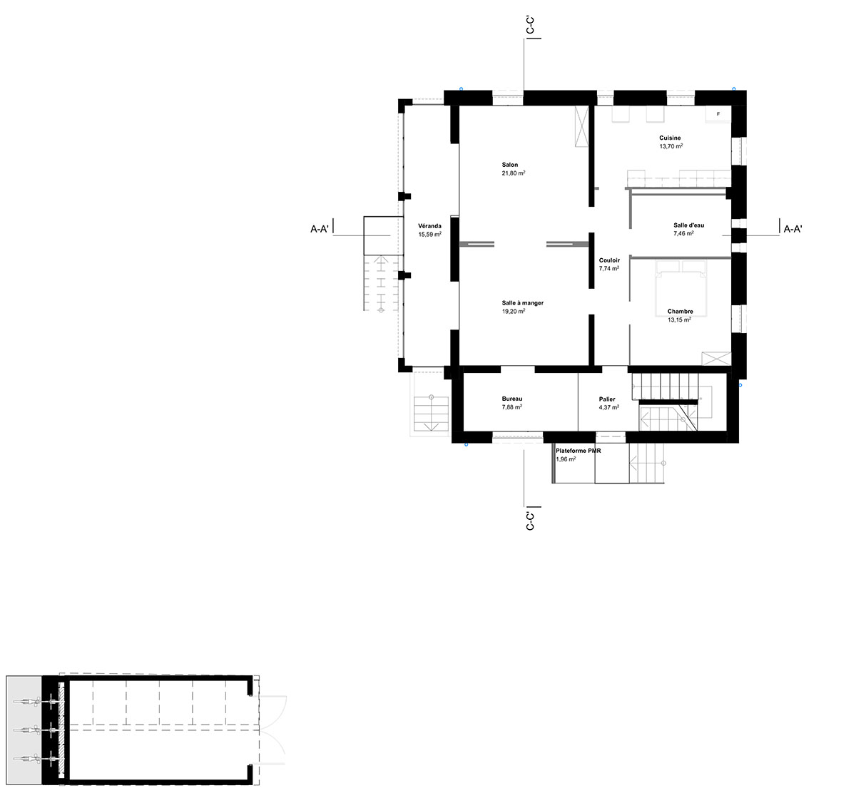
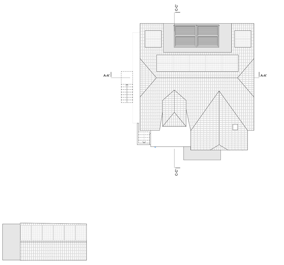
La rénovation de cette maison comprend une rénovation thermique complète HPE Extension / THPE Rénovation avec remplacement de la chaudière gaz par une PAC géothermique, l’installation de panneaux solaires thermiques et photovoltaïques, l’isolation des façades et de la toiture, celle-ci étant modifiée avec la création de deux lucarnes pour l’appartement des combles.
La terrasse actuelle du rez-de-chaussée est fermée afin de créer une véranda chauffée.

Maîtres d'ouvrage: Privée
Situation géographique: Versoix
Collaborateurs: A.Glöckner - L.Beaud

    • Photos
    • Photos
    • Photos
    • Photos
    • Photos
    • Photos
    • Photos
    • Photos
    • Photos
    • Photos
    • Photos
    • Photos
    • Photos
    • Photos
    • Photos
    • Photos
    • Photos
    • Photos
    • Photos
    • Photos
    • Photos
    • Photos
    • Photos
    • Photos
    • Photos
    • Photos
    • Photos
    • Photos
    • Photos
    • Photos
    • Photos
    • Photos
    • Photos
    • Plans
    • Plans
    • Plans
    • Plans
    • Plans
    • Plans