Situé au dernier étage d’un immeuble d’habitation au cœur de la vieille ville, cet appartement a été complètement repensé pour accueillir un couple dans des espaces plus grands et plus aériens que ceux fournis par la distribution initiale. Tous les matériaux neufs, et ceux qui ont été restaurés, ont été choisi dans un esprit contemporain et sobre.

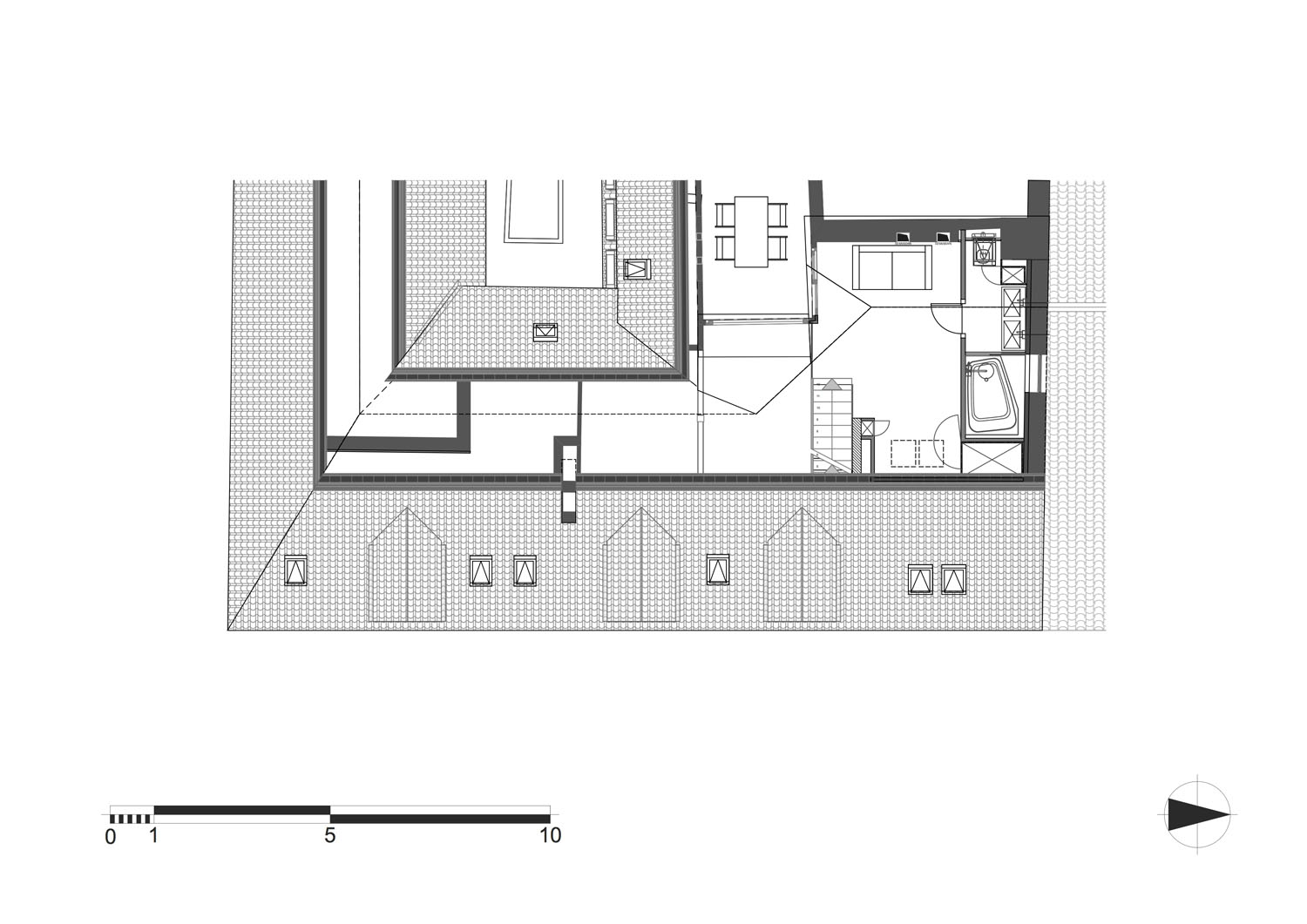
S’articulant sur trois étages, on y entre par le niveaux intermédiaire constitué du séjour séparé entre salon et salle à manger, de la cuisine et de la chambre principale avec sa salle de bain ouverte sur celle-ci et son dressing.

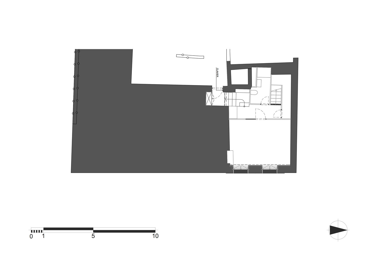
A côté de la cuisine, un escalier descend à l’étage inférieure ou l’on trouve une chambre avec son dressing et sa salle d’eau. Une entrée permet l’accès direct à ce niveau.

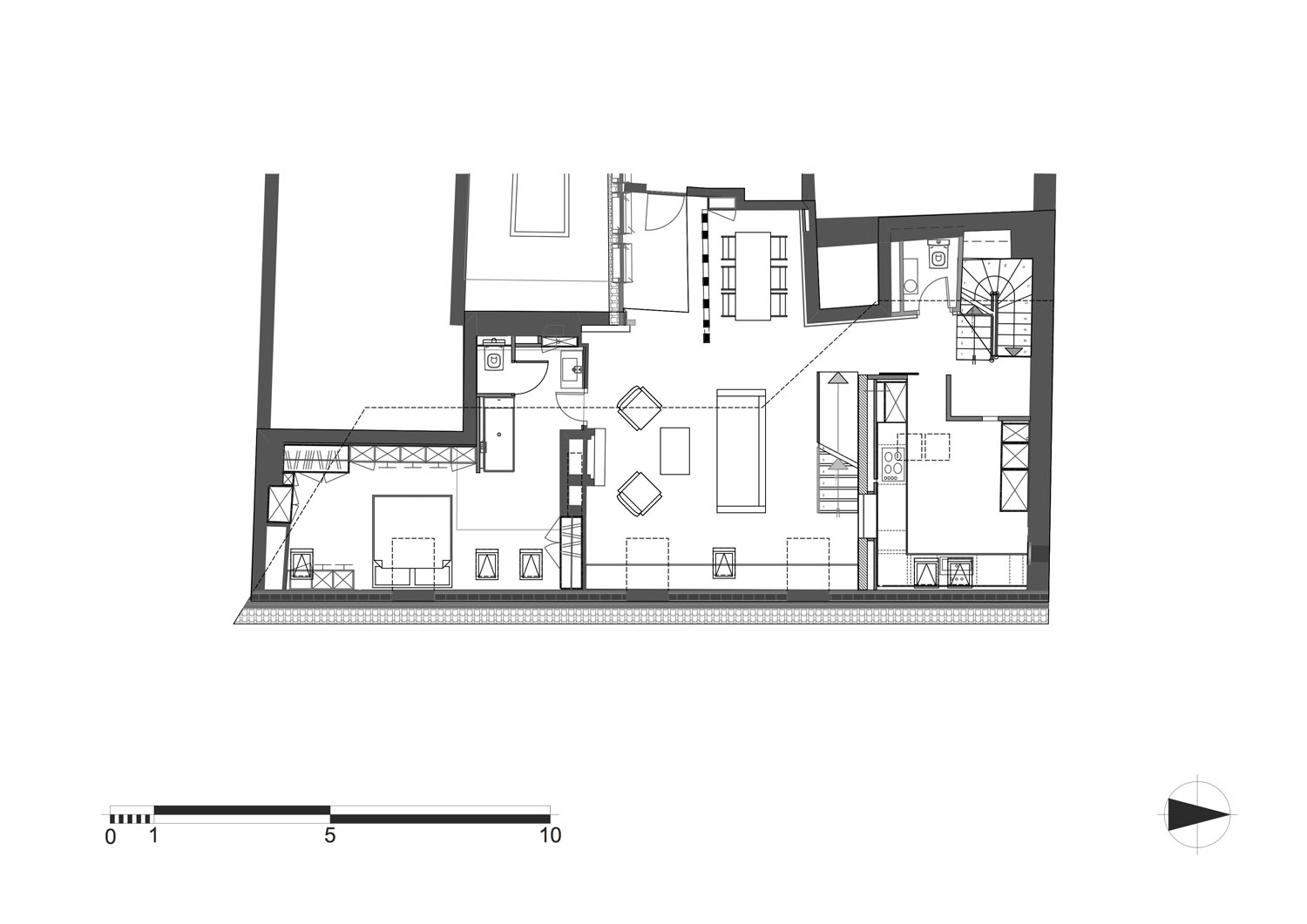
Depuis le séjour, un autre escalier monte sur la mezzanine ou l’on trouve un petit-salon servant également de chambre d’amis et une salle de bain. Une terrasse, entourée des toiture avoisinantes, permet une vue imprenable sur la vieille ville.

Maître d'ouvrage: Privé
Situation géographique: Genève
Collaborateurs: R.Dupuis - A.Cartallier

  • espaces intérieurs
    Salon
  • espaces intérieurs
    Depuis la mezzanine
  • espaces intérieurs
    Séjour
  • espaces intérieurs
    Chambre
  • espaces intérieurs
    Salle de bains 1
  • espaces intérieurs
    Dégagement
  • espaces intérieurs
    Cuisine
  • espaces intérieurs
    Détail salle à manger
  • espaces intérieurs
    Salle à manger
Escalier
plan masse
  • plans
    étage supérieur
  • plans
    étage inférieur
  • plans
    mezzanine
  • plans
    toiture