Mandaté par un maître d’ouvrage privé pour la rénovation énergétique et agrandissement de leur chalet en résidence secondaire, Atelier Nord a conçu ce projet permettant aux clients de gagner en surface et en aisance en agrandissant le chalet, et en surélevant le RDC qui avait une hauteur sous-plafond de moins de 2m.

Maître d'ouvrage: Privé
Situation géographique: Gryon, Canton de Vaud
Collaborateurs: R. Dupuis - L. Beaud
Chauffage par pompe à chaleur air/eau et panneaux solaires photovoltaïques
Construction Bois

    • Réalisation
    • Réalisation
    • Réalisation
    • Réalisation
    • Réalisation
    • Réalisation
    • Réalisation
    • Réalisation
    • Réalisation
    • Réalisation
    • Réalisation
    • Réalisation
    • Réalisation
    • Réalisation
    • Réalisation
    • Réalisation
    • Réalisation
    • Réalisation
    • Réalisation
    • Réalisation
    • Réalisation
    • Réalisation
    • Réalisation
    • Chantier en cours - Extérieur
    • Chantier en cours - Extérieur
      created by dji camera
    • Chantier en cours - Extérieur
    • Chantier en cours - Extérieur
    • Chantier en cours - Extérieur
    • Chantier en cours - Extérieur
    • Chantier en cours - Extérieur
      created by dji camera
    • Chantier en cours - Extérieur
    • Chantier en cours - Extérieur
    • Chantier en cours - Extérieur
    • Chantier en cours - Extérieur
    • Chantier en cours - Extérieur
    • Chantier en cours - Extérieur
    • Chantier en cours - Extérieur
    • Chantier en cours - Extérieur
    • Chantier en cours - Extérieur
    • Chantier en cours - Extérieur
    • Chantier en cours - Extérieur
    • Chantier en cours - Extérieur
    • Chantier en cours - Extérieur
    • Chantier en cours - Extérieur
    • Chantier en cours - Extérieur
    • Chantier en cours - Extérieur
    • Chantier en cours - Extérieur
    • Chantier en cours - Extérieur
    • Chantier en cours - Extérieur
    • Chantier en cours - Intérieur
    • Chantier en cours - Intérieur
    • Chantier en cours - Intérieur
    • Chantier en cours - Intérieur
    • Chantier en cours - Intérieur
    • FACADES CHALET EXISTANT
    • FACADES CHALET EXISTANT
    • FACADES CHALET EXISTANT
    • FACADES CHALET EXISTANT
    • INTERIEUR
    • INTERIEUR
    • VUES 3D
    • VUES 3D
    • VUES 3D
    • VUES 3D
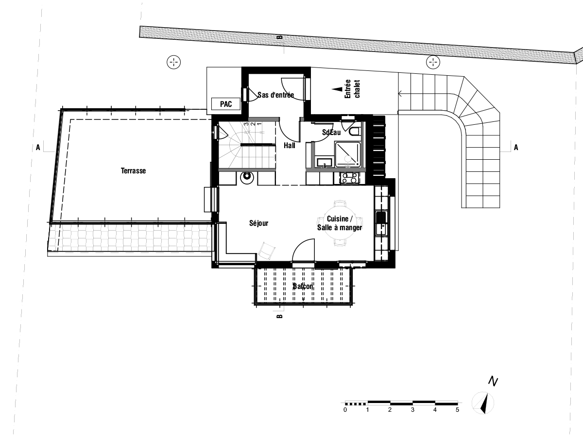
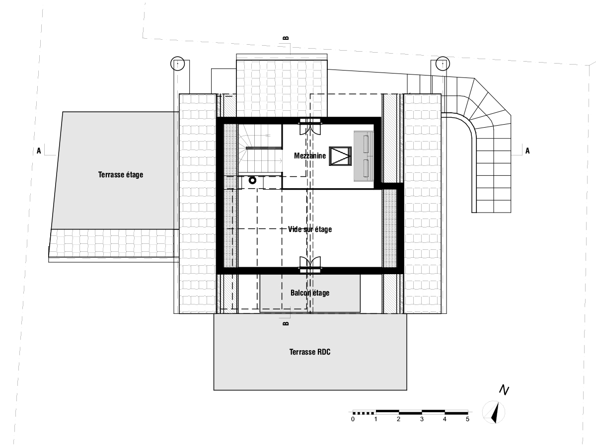
    • Plans
    • Plans
    • Plans
    • Plans
    • Coupes - Façades
    • Coupes - Façades
    • Coupes - Façades
    • Coupes - Façades
    • Coupes - Façades
    • Coupes - Façades